Haus Elana 170 m²

Kurzbeschreibung Haus "Elana"

 

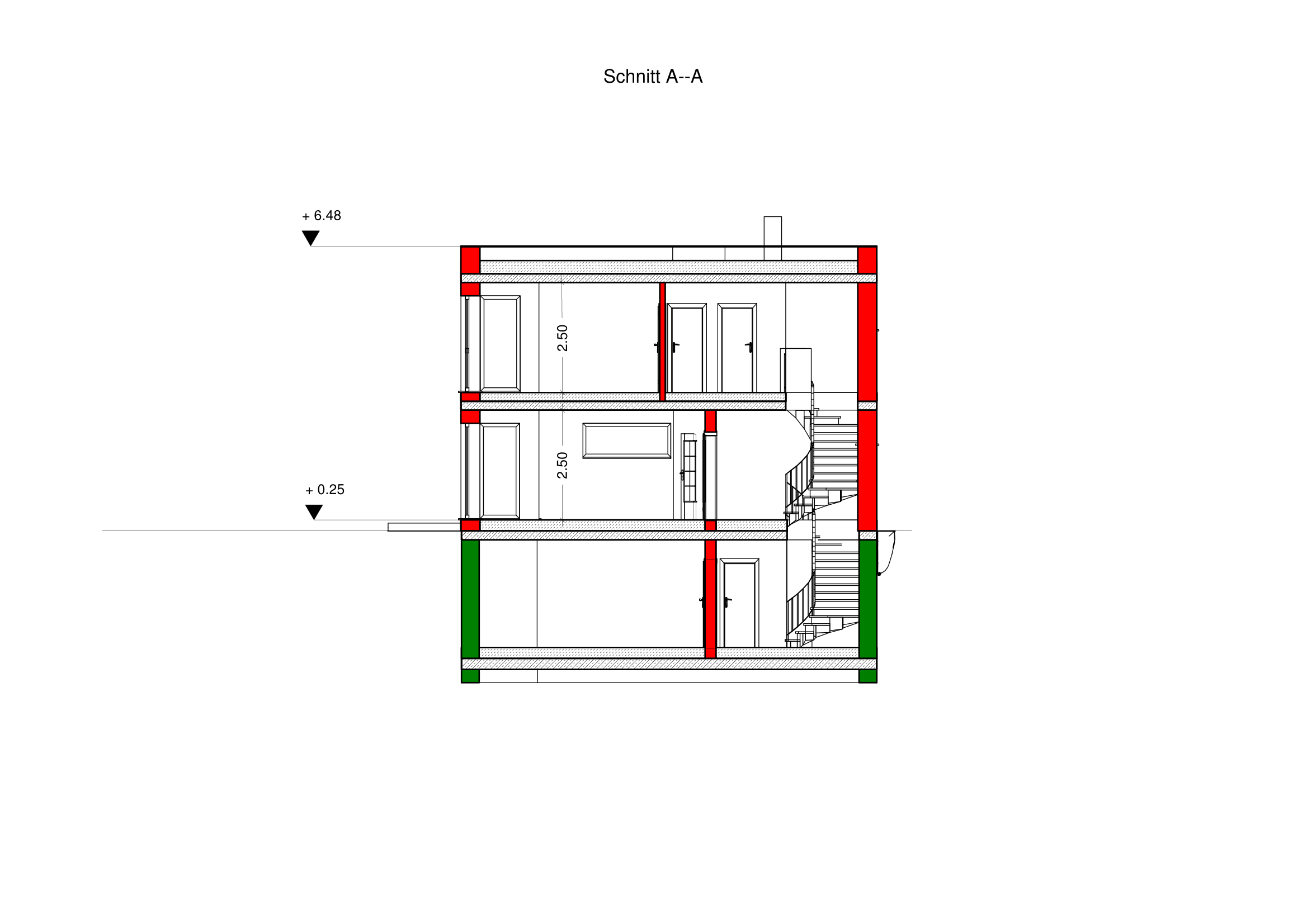
Haus laut Plan mit Flachdach und Balkone. 

Gesamtfläche: 170m²
3-Fach Wärmeschutzverglasung 0,5 W/m²K
Vollgeschoß, Flachdach,
30 cm Dachdämmung, 25 cm Estrichaufbau im EG und OG                                              Luftwärmepumpe zum Heizen und Kühlen
Viele weitere Extras ohne Aufpreise.
Jede Umplanung kostenlos möglich.
Haus in jeder Größe variabel.

Haus "Elana 170 m²"

Ist das nicht auch Ihr Geschmack?
Aussenansichten
Fassadenvorschläge
Innenansichten
Dachvariante Satteldach
Dachvariante Walmdach
Dachvariante Pultdach
Ausbaustufe 1 Ausbauhaus außen und innen komplett fertig  (Siehe Leistungsbeschreibung) 
Preis € 299.160,--
Ausbaustufe 2 Belagsfertig  (Siehe Leistungsbeschreibung)
Preis € 405.720,--
Ausbaustufe 3 Absolut schlüsselfertig  (Siehe Leistungsbeschreibung) 
Preis € 432.120,--

Preise gültig 40 Kilometer im Umkreis von Hof bei Salzburg

Klicken Sie bitte hier, um die exakten Daten der einzelnen "Ausbaustufen" zu erfahren.
Die Beschreibung trifft grundsätzlich auf alle angebotenen Modelle zu.